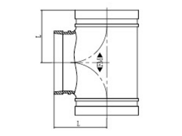
La tee ranurada de tubos de igual tamaño tiene el mismo tamaño tanto para las tuberías principales como para las derivadas, con la tubería de derivación perpendicular a la tubería principal. Los extremos ranurados se conectan a la tubería mediante acoplamientos para la distribución de fluidos para proporcionar el cambio de dirección y adaptar tamaños o componentes.
La tee ranurada de tubos de igual tamaño es adecuada para sistemas de transporte de líquidos y gases, como sistemas de tuberías de agua, aire y aceite.




| Tamaño nominal | Diámetro exterior de la tubería | Dimensiones |
| mm/pulgadas | mm/pulgadas | L mm/pulgadas |
| 25 / 1 | 33.7 / 1.327 | 57 / 2.24 |
| 32 / 1 1/4 | 42.4 / 1.669 | 60 / 2.36 |
| 40 / 1 1/2 | 48.3 / 1.9 | 60 / 2.36 |
| 50 / 2 | 60.3 / 2.375 | 70 / 2.76 |
| 65 / 2 1/2 | 73 / 2.875 | 76 / 2.99 |
| 65 / 2 1/2 | 76.1 / 3 | 76 / 2.99 |
| 80 / 3 | 88.9 / 3.5 | 86 / 3.39 |
| 100 / 4 | 108 / 4.25 | 102 / 4.02 |
| 100 / 4 | 114.3 / 4.5 | 102 / 4.02 |
| 125 / 5 | 133 / 5.25 | 121 / 4.76 |
| 125 / 5 | 139.7 / 5.5 | 121 / 4.76 |
| 125 / 5 | 141.3 / 5.563 | 121 / 4.76 |
| 150 / 6 | 159 / 6.25 | 140 / 5.51 |
| 150 / 6 | 165.1 / 6.5 | 140 / 5.51 |
| 150 / 6 | 168.3 / 6.625 | 140 / 5.51 |
| 200 / 8 | 219.1 / 8.625 | 175 / 6.89 |
| 250 / 10 | 273 / 10.75 | 215 / 8.46 |