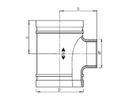
La tee reducida roscada es un tipo de accesorio en T en el que el tamaño de la tubería de derivación es más pequeño que el de la tubería principal y la conexión de derivación está roscada. Por lo general, están hechos de materiales como acero inoxidable, latón o PVC, según la aplicación y el tipo de fluido que se transporta. Seleccionar el tamaño y el material correctos para las tee reducidas roscadas es crucial para garantizar la integridad y la vida útil de los sistemas de tuberías.




| Tamaño nominal | Diámetro exterior de tubería | Dimensiones | |
| mm/pulgadas | L1 mm/pulgadas | L2mm/pulgadas | |
| 50x25 / 2x1 | 60.3x33.7 / 2.375x1.315 | 70 / 2.76 | 70 / 2.76 |
| 50x32 / 2x11/4 | 60.3 x 42.4 / 2.375x1.660 | 70 / 2.76 | 70 / 2.76 |
| 50x40 / 2x11/2 | 60.3x48.3 / 2.375x1.900 | 70 / 2.76 | 70 / 2.76 |
| 65x25 / 2 1/2x1 | 73.0 x 33.7 / 2.875x1.315 | 76 / 2.99 | 76 / 2.99 |
| 65x32 / 2 1/2x1 1/4 | 73.0x42.4 / 2.875x1.660 | 76 / 2.99 | 76 / 2.99 |
| 65x40 / 2 1/2x1 1/2 | 73.0x48.3 / 2.875x1.900 | 76 / 2.99 | 76 / 2.99 |
| 65x50 / 2 1/2x2 | 73.0 x 60.3 / 2.875 x 2.375 | 76 / 2.99 | 76 / 2.99 |
| 65x25 / 2 1/2x1 | 76.1x33.7 / 3.000x1.315 | 95 / 3.74 | 95 / 3.74 |
| 65x32 / 2 1/2x1 1/4 | 76.1x42.4 / 3.000x1.660 | 95 / 3.74 | 95 / 3.74 |
| 65x40 / 2 1/2x1 1/2 | 76.1x48.3 / 3.000x1.900 | 95 / 3.74 | 95 / 3.74 |
| 65x50 / 2 1/2x2 | 76.1x60.3 / 3.000 x 2.375 | 95 / 3.74 | 95 / 3.74 |
| 80x25 / 3x1 | 88.9 x 33.7 / 3.500x1.315 | 108 / 4.25 | 108 / 4.25 |
| 80x32 / 3x11/4 | 88.9x42.4 / 3.500x1.660 | 108 / 4.25 | 108 / 4.25 |
| 80x40 / 3x1 1/2 | 88.9 x 48.3 / 3.500x1.900 | 108 / 4.25 | 108 / 4.25 |
| 80x50 / 3x2 | 88.9 x 60.3 / 3.500 x 2.375 | 108 / 4.25 | 108 / 4.25 |
| 80x65 / 3x2 1/2 | 88.9 x 76.1 / 3.500 x 3.000 | 108 / 4.25 | 108 / 4.25 |
| 100x65 / 4x2 1/2 | 108.0 x 76.1 / 4.250x3.000 | 127 / 5 | 127 / 5 |
| 100x80 / 4x3 | 108.0 x 88.9 / 4.250x3.500 | 127 / 5 | 127 / 5 |
| 100x25 / 4x1 | 114.3x33.7 / 4.500 x 1.315 | 127 / 5 | 127 / 5 |
| 100x32 / 4x1 1/4 | 114.3x42.4 / 4.500x1.660 | 127 / 5 | 127 / 5 |
| 100x40 / 4x1 1/2 | 114.3x48.3 / 4.500x1.900 | 127 / 5 | 127 / 5 |
| 100x50 / 4x2 | 114.3x60.3 / 4.500x2.375 | 127 / 5 | 127 / 5 |
| 100x65 / 4x2 1/2 | 114.3x76.1 / 4.500 x 3.000 | 127 / 5 | 127 / 5 |
| 100x80 / 4x3 | 114.3x88.9 / 4.500 x 3.500 | 127 / 5 | 127 / 5 |
| 125x25 / 5x1 | 139.7 x 33.7 / 5.500x1.315 | 110 / 4.33 | 110 / 4.33 |
| 125x32 / 5x1 1/4 | 139.7x42.4 / 5.500x1.660 | 110 / 4.33 | 110 / 4.33 |
| 125x40 / 5x 1 1/2 | 139.7x48.3 / 5.500 x1.900 | 110 / 4.33 | 110 / 4.33 |
| 125x50 / 5x2 | 139.7x60.3 / 5.500 x 2.375 | 110 / 4.33 | 110 / 4.33 |
| 125x65 / 5 x 2 1/2 | 139.7x76.1 / 5.500 x 3.000 | 110 / 4.33 | 110 / 4.33 |
| 125x80 / 5x3 | 139.7x88.9 / 5.500 x 3.500 | 110 / 4.33 | 110 / 4.33 |
| 150x25 / 6x1 | 165.1x33.7 / 6.500x1.315 | 165 / 6.5 | 165 / 6.5 |
| 150x32 / 6x1 1/4 | 165.1x42.4 / 6.500x1.660 | 165 / 6.5 | 165 / 6.5 |
| 150x40 / 6x1 1/2 | 165.1x48.3 / 6.500x1.900 | 165 / 6.5 | 165 / 6.5 |
| 150x50 / 6x2 | 165.1x60.3 / 6.500x2.375 | 165 / 6.5 | 165 / 6.5 |
| 150x65 / 6x2 1/2 | 165.1x76.1 / 6.500x3.000 | 165 / 6.5 | 165 / 6.5 |
| 150x80 / 6x3 | 165.1x889 / 6.500x3.500 | 165 / 6.5 | 165 / 6.5 |
| 150x 100 / 6x4 | 165.1x114.3 / 6.500x4.500 | 165 / 6.5 | 165 / 6.5 |
| 150x25 / 6x1 | 168.3 x 33.7 / 6.625x1.315 | 140 / 5.51 | 140 / 5.51 |
| 150x32 / 6x1 1/4 | 168.3x42.4 / 6.625x1.660 | 140 / 5.51 | 140 / 5.51 |
| 150x40 / 6x11/2 | 168.3 x 48.3 / 6.625 x1.900 | 140 / 5.51 | 140 / 5.51 |
| 150x50 / 6x2 | 168.3 x 60.3 / 6.625x2.375 | 140 / 5.51 | 140 / 5.51 |