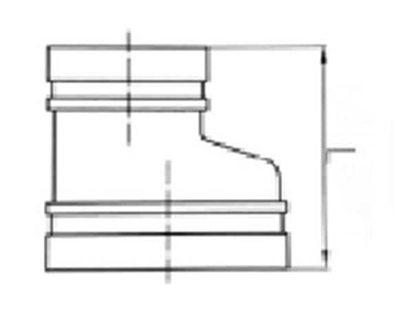
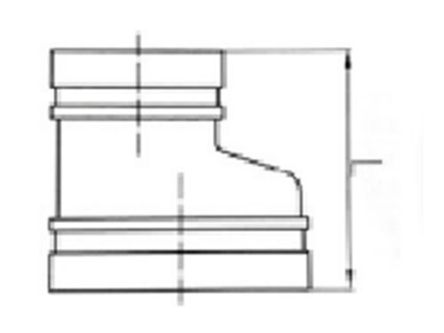
Los reductores excéntricos ranurados son accesorios de tubería en forma de cono con ranuras para la conexión, que reducen el tamaño de la tubería de manera excéntrica. Este reductor excéntrico ranurado logra un acoplamiento mecánico mediante el uso de un conjunto de ranuras en los extremos de las tuberías y accesorios. Por lo general, se utiliza una herramienta especializada para cortar una ranura en el extremo de la tubería, y luego la junta se sujeta a la ranura con pernos o un mecanismo similar.
Los reductores excéntricos ranurados se usan comúnmente en sistemas de tuberías industriales y comerciales, como gasoductos, tuberías de suministro de agua, entre otros, donde es necesario reducir el tamaño de la tubería para adaptarse a los cambios en el flujo o la presión.




Conecta tuberías, proporciona cambios de dirección y adapta tamaños o componentes
| Tamaño nominal | Diámetro exterior de la tubería | Dimensiones |
| mm/pulgadas | mm/pulgadas | L mm/pulgadas |
| 32x25 / 1 1/4x1 | 42.4x33.7 / 1.660x1.315 | 64 / 2.51 |
| 40x25 / 11/2x1 | 48.3x33.7 / 1.900x1.315 | 64 / 2.51 |
| 40x32 / 1 1/2×1 1/4 | 48.3x42.4 / 1.900x1.660 | 64 / 2.51 |
| 50x25 / 2x1 | 60.3 x 33.7 / 2.375x1.315 | 64 / 2.51 |
| 50x32 / 2x1 1/4 | 60.3x42.4 / 2.375x1.660 | 64 / 2.51 |
| 50x40 / 2x1 1/2 | 603x48.3 / 2.375x1.900 | 64 / 2.51 |
| 65x25 / 2 1/2x1 | 73.0 x 33.7 / 2.875x1.315 | 64 / 2.51 |
| 65x32 / 2 1/2x1 1/4 | 73.0x42.4 / 2.875x1.660 | 64 / 2.51 |
| 65x40 / 2 1/2x1 1/2 | 73.0x48.3 / 2.875x1.900 | 64 / 2.51 |
| 65x50 / 2 1/2x2 | 73.0 x 60.3 / 2.875x2.375 | 64 / 2.51 |
| 65x32 / 2 1/2x1 1/4 | 76.1 x 42.4 / 3.000x1.660 | 64 / 2.51 |
| 65x40 / 2 1/2x1 1/2 | 76.1x48.3 / 3.000x1.900 | 64 / 2.51 |
| 65x50 / 2 1/2x2 | 76.1x60.3 / 3.000 x 2.375 | 64 / 2.51 |
| 80x32 / 3x1 1/4 | 88.9x42.4 / 3.500x1.660 | 55 / 2.17 |
| 80x40 / 3x1 1/2 | 88.9 x 48.3 / 3.500x1.900 | 55 / 2.17 |
| 80x50 / 3x2 | 88.9 x 60.3 / 3.500x2.375 | 55 / 2.17 |
| 80x65 / 3x2 1/2 | 88.9x76.1 / 3.500 x 3.000 | 55 / 2.17 |
| 100x65 / 4x2 1/2 | 108.0 x 76.1 / 4.250 x 3.000 | 76 / 2.99 |
| 100x80 / 4x3 | 108.0x88.9 / 4.250 x 3.500 | 76 / 2.99 |
| 100x32 / 4x1 1/4 | 114.3x42.4 / 4.500x1.660 | 60 / 2.36 |
| 100x40 / 4x1 1/2 | 114.3x48.3 / 4.500x1.900 | 60 / 2.36 |
| 100x50 / 4x2 | 114.3x60.3 / 4.500x2.375 | 60 / 2.36 |
| 100x65 / 4x2 1/2 | 114.3x76.1 / 4.500 x 3.000 | 60 / 2.36 |
| 100x80 / 4x3 | 114.3x88.9 / 4.500 x 3.500 | 60 / 2.36 |
| 125x50 / 5x2 | 139.7x60.3 / 5.500x2.375 | 65 / 2.56 |
| 125x65 / 5x2 1/2 | 139.7x76.1 / 5.500 x 3.000 | 65 / 2.56 |
| 125x80 / 5x3 | 139.7x88.9 / 5.500 x 3.500 | 65 / 2.56 |
| 125x100 / 5x4 | 139.7x114.3 / 5.500 x 4.500 | 65 / 2.56 |
| 150x50 / 6x2 | 159.0x60.3 / 6.250x2.375 | 70 / 2.76 |
| 150x65 / 6x2 1/2 | 159.0x76.1 / 6.250 x 3.000 | 70 / 2.76 |
| 150x80 / 6x3 | 159.0x88.9 / 6.250 x 3.500 | 70 / 2.76 |
| 150x100 / 6x4 | 159.0x108.0 / 6.250 x 4.250 | 70 / 2.76 |
| 150x100 / 6x4 | 159.0x114.3 / 6.250x4.500 | 70 / 2.76 |
| 150x125 / 6x5 | 159.0x133.0 / 6.250x5.250 | 70 / 2.76 |
| 150x125 / 6x5 | 159 0x139 7 / 6.250 x 5.500 | 70 / 2.76 |
| 150x50 / 6x2 | 165.1 x60.3 / 6.500 x 2.375 | 102 / 4.01 |
| 150x65 / 6x2 1/2 | 165.1x76.1 / 6.500 x 3.000 | 102 / 4.01 |
| 150x80 / 6x3 | 165.1x88.9 / 6.500 x 3.500 | 102 / 4.01 |
| 150x100 / 6x4 | 165.1x114.3 / 6.500x4.500 | 102 / 4.01 |
| 150x125 / 6x5 | 165.1x139.7 / 6.500x5.500 | 102 / 4.01 |
| 150x50 / 6x2 | 168.3 x 60.3 / 6.625x2.375 | 70 / 2.76 |
| 150x65 / 6x2 1/2 | 168.3x76.1 / 6.625 x 3.000 | 70 / 2.76 |
| 150x80 / 6x3 | 168.3 x 88.9 / 6.625x3.500 | 70 / 2.76 |
| 150x100 / 6x4 | 168.3x114.3 / 6.625x4.500 | 70 / 2.76 |
| 150x125 / 6x5 | 168.3x139.7 / 6.625 x 5.500 | 70 / 2.76 |
| 200 x 50 / 8x2 | 219.1x60.3 / 8.625x2.375 | 85 / 3.35 |
| 200x65 / 8x2 1/2 | 219.1x76.1 / 8 625x3.000 | 85 / 3.35 |
| 200 x 80 / 8x3 | 219.1x88.9 / 8.625x3.500 | 85 / 3.35 |
| 200x100 / 8x4 | 219.1 x 108.0 / 8.625x4.250 | 85 / 3.35 |
| 200x100 / 8x4 | 219.1 x 114.3 / 8.625x4.500 | 85 / 3.35 |
| 200x125 / 8x5 | 219.1 x 139.7 / 8.625 x 5.500 | 85 / 3.35 |
| 200x150 / 8x6 | 219.1 x 159.0 / 8.625x6.250 | 85 / 3.35 |
| 200x150 / 8x6 | 219.1 x 165.1 / 8.625x6.500 | 85 / 3.35 |
| 200x150 / 8x6 | 219.1 x 168.3 / 8.625x6.625 | 85 / 3.35 |